Elon Musk’ın Benzersiz Restoran Projesi: Elektrikli Araç Şarj İstasyonu ve Arabalı Sinema

Elon Musk’tan Sıra Dışı Bir Restoran Projesi

Elon Musk'tan Sıra Dışı Bir Restoran Projesi

Sıra dışı fikirler üretme konusunda cömertliği ile tanınan Elon Musk, şimdi de arabalı sinema ve elektrikli araç şarj istasyonunu bir araya getiren, tüm gece açık bir Tesla restoranı için planlarını açıkladı. Bu benzersiz tesis, iki adet 45 metrelik LED film ekranı, iç ve dış oturma alanları ile birlikte 28 süper şarj cihazı barındıracak. Hollywood’un ünlü Santa Monica Bulvarı’nda inşa edilmesi planlanan bu restoran, onay alınması halinde Dogecoin ile ödeme seçenekleri de sunacak.

Musk, bu yaratıcı fikir hakkında ilk kez 2018 yılında tweet attığını belirtirken, geçtiğimiz yıl restoran işine katılmak amacıyla üç ticari marka için başvuruda bulunduğunu ifade ediyor. Tesla ve SpaceX’in CEO’su, geçtiğimiz ay sonunda yeni tekliflerini Los Angeles şehir yönetimine sunmuş durumda. Musk’ın açıklamalarına göre, Tesla başlangıçta lokantayı sahil kenti Santa Monica’da inşa etmeyi düşünüyordu. Ancak daha sonra bu planları tarihi Route 66’da, Hollywood’a taşımaya karar verdi.

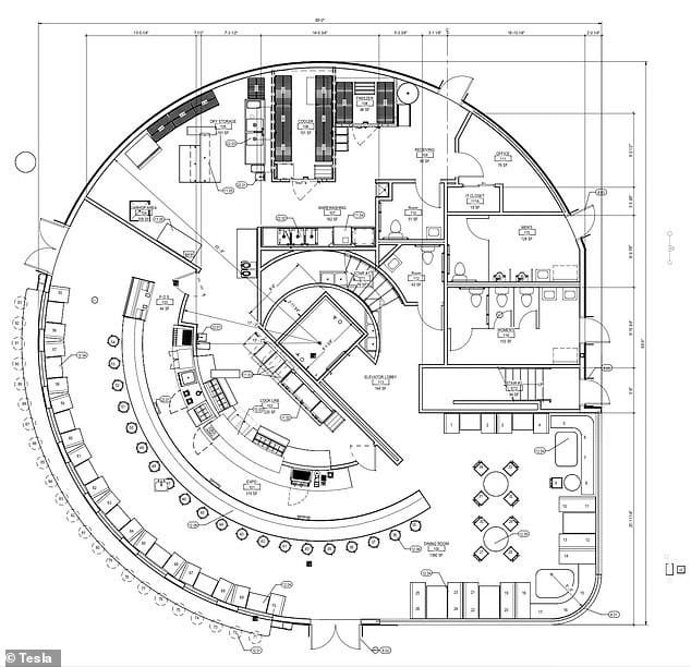
Elon Musk’ın Lokantasında Neler Olacak?

Projenin en dikkat çekici özelliklerinden biri, arabalı sinemanın standart bir yemek veya şarj seansı kadar sürmesi hedeflenen, yaklaşık 30 dakika uzunluğunda kısa filmler göstermesi. 864 metrekarelik alanda halihazırda büyük bir otopark mevcut, ancak tesisin işlevselliğini artırmak için 28 süper şarj istasyonu ve toplamda 34 park yeri eklenmesi gerekecek.

  • Lokantanın zemin katında bir mutfak, sandalyeli ve localı oturma alanları ile birlikte bir açık hava barı yer alacak.
  • Üst kat ise, açık teras oturma alanı ve tiyatro tarzı koltuklar için ayrılmış bir alan içerecek.
  • Personelin otoparktaki araçlara yemek getirebilmesi için alt katta bir araç teslim alanı da bulunacak.

Tesis, toplamda 200’den fazla oturma alanı sunacak. Ancak, sadece planlara bakarak dekorun nasıl görüneceği konusunda bir tahminde bulunmak oldukça güç. Tesla, başlangıçta bu projeyi bir “klasik lokanta” olarak tanımlasa da, ilerleyen süreçte çok daha fütüristik bir tarza yönelme ihtimali oldukça yüksek.